About the Works Yard

The Richmond Works Yard delivers essential services that include day-to-day operations, infrastructure maintenance, emergency response and disaster recovery that keep our community safe, healthy, and functioning every day.

Built in 1981, the current Works Yard no longer meets today’s building code, safety standards nor post-disaster standards. In the event of a major earthquake or flood, the site could be severely damaged and unable to operate— putting critical services at risk and limiting the City’s ability to respond and recover when residents need us the most.

This is why the Works Yard will be completely reconstructed at its existing site, 5599 Lynas Lane, creating a modern, resilient and sustainable facility designed to serve the community for decades to come.


Project Highlights

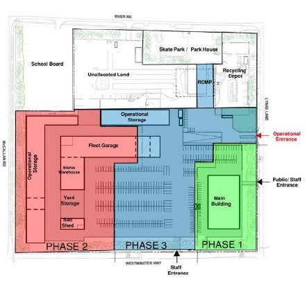
The new Works Yard will be built in three phases over 10 years. Operations will continue throughout construction to ensure we provide uninterrupted service to the community.

Phase 1 is underway and includes:

  • Staff relocation and structure removal

  • Civil works and ground improvements

  • Main building, workshops and parking construction

The new facility will:

  • Strengthen Richmond’s ability to respond to weather events, emergencies and natural disasters
  • Support essential services that protect the health, safety and mobility of residents and businesses
  • Be innovative, resilient, sustainable, and designed for long-term growth
  • Incorporate existing trees and berms into the design with minimal disturbance while maintaining the site’s green buffer
  • Be built to post-disaster and flood-resilient standards (4.7 m geodetic elevation)


Architectural Team: TKA+D Architecture + Design Inc.
Construction Manager: PCL Constructors Westcoast Inc.


Building in Phases

Concept design provides an early look at the size, shape and layout of the new facility. It helps show how the new Works Yard will fit into the surrounding neighbourhood.

To ensure the Works Yard continues to operate smoothly and serve the community throughout the 10-year construction period, the project is following a three-phase approach. This requires careful coordination and planning across all construction and operational activities. A dedicated onsite team is in place to manage the process—reducing disruption, maintaining safety, and ensuring services continue uninterrupted.


Frequently Asked Questions

As of November 28, 2025, City staff parking is relocated with access via River Road. Parking is restricted to registered City of Richmond staff only.

Traffic management plans will be in place to reduce disruptions. Temporary detours, lane reductions, or changes to access routes may occur during certain phases. Residents and businesses will be notified in advance of any major impacts. Safety, service continuity, and community considerations—such as access and noise—will remain top priorities.

Ground improvements will include preload with stone columns—a proven method used in Richmond for major civic projects. This approach helps control long-term settlement for critical infrastructure. Work is scheduled to begin in Q2 2026.

A visitor parking area is being constructed as the existing stalls are within the Phase 1 construction zone.

Stay tuned for more information about visiting the Works Yard during construction.

Enabling works are the essential early activities that prepare a site for construction. For the Works Yard Replacement Project, these works ensure operations continue safely and efficiently throughout the multi-phased build.

Some key enabling works include:

  • Site clearance and reconfiguration
  • Utility relocations
  • Staff relocation
  • Site condition investigations
  • Ground improvement works

Yes. The public EV charger has been relocated to River Road and Lynas Lane, near the Skateboard Park.

Yes. Some noise is expected, as the Works Yard remains operational during construction. Mitigation measures will be in place. Typical construction hours are 7:00am to 5:00pm., Monday to Friday, in compliance with Noise Regulation Bylaw No. 8856. Advance notice will be provided for any work outside these hours.

Preserving existing trees and berms is a key design parameter approved by Council. These existing features will be incorporated into the new facility’s design with minimal disturbance.

The Works Yard Replacement Project is expected to be completed in 2034, with an estimated timeline of 10 years, following a phased approach (3 phases) to ensure continued operations and uninterrupted service to the community.

The Works Yard Replacement Project aligns with the City of Richmond’s strategic initiatives, sustainability goals, and regulatory standards. This includes environmental policies, energy efficiency targets, accessibility requirements, and long-term infrastructure planning. The project is guided by Council-approved Guiding Principles that reflect the City’s commitment to operational excellence, sustainable development, and community service. The new facility is intended to support a resilient, efficient future for Richmond while upholding the City’s values and long-term vision.

The Works Yard sits directly on the former McCallan stop of the Lulu Island Line—an interurban route that was part of the BC Electric Railway. This line once served the rural Brighouse area, helping connect agricultural and industrial workers to Vancouver and Steveston. The Works Yard was built around the original railway tracks in the late 1970s and early 1980s, inheriting a curve that remained even after the tracks were removed—a reminder of the past that still shapes the site today.

No. The Recycling Depot will remain operational—along with the Works Yard—during construction, with minimal impact to residents. It is not part of the Works Yard Replacement Project.

No. The Richmond School District is not part of the Works Yard Replacement Project.

No. The Skateboard Park is not part of the Works Yard Replacement Project.